Vecaki

266000 kr

Pris (med MVA): 266000 kr

Beskrivelse

caret-down
  • Skreddersydd og tilpasninger mulig.
  • Tykkere vegg (68 mm, 90 mm, 135 mm, etc.) mulig.
  • Vegg,tak og gulv isolasjonssett tilgjengelig mot pristillegg.

Kan bestilles:

  • Veggisolasjonssett (beregnet til 150mm steinullinstallasjon)
  • Takisolasjonssett
  • Førsteklasses helårshusvinduer, ytterdører og innerdører
  • Industrimaling av vinduer og dører

Inkludert i pakken

caret-down
  • Vegg 44mm;
  • 19 mm not og fjær tak,kantbord;
  • 28 mm not og fjær gulvbord,gulvlister;
  • Isolerglass vinduer og dører i treramme ;
  • Toveis åpningsbare vinduer med utvendig vinduskarm i metall;
  • Impregnerte grunnbjelker;
  • Avtakbar stige;
  • 28 mm terrasse med rekkverk;
  • Vinduer og dører med komplett beslagg sett;
  • Monteringsanvisning.

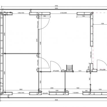
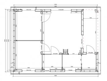
Tekniske opplysninger

caret-down
Veggtykkelse (mm):
44mm
Bruksareal (m²):
44.32
Antall etasjer:
1
Takformen:
Saltak
Husets form:
Firkantet
Antall rom:
Mer enn tre
Utvendige mål (m):
8.56 x 6.23
Bygningsareal(m²):
53.33
Takareal (m²):
73
Tak overheng foran (m):
1.75
Laveste vegghøyde (m):
2.34
Mønehøyde (m):
3.77
Antall vinduer (stk.):
4 / 1 / 1
Vindusstørrelsen (m):
1.40 x 1.05 / 0.75 x 1.05 / 2.15 x 2.10
Ytterdør størrelse (m):
0.90 x 2.10
Innerdør størrelse (m):
0.90 x 2.10
Terrasse (m²):
6.36

Ytterligere filer

caret-down
Ytterligere muligheter
Montering
Mulig å bestille montering, samt utførelse av annet tilleggsarbeid i henhold til avtale (fundament, isolering, maling mm.)
Individuelle prosjekter
Vi produserer også skreddersydde prosjekter etter deres skisser, tegninger, ideer!
Få flere opplysninger
Ved å sende denne meldingen vil du motta et tilbud på produktet: Vecaki

Vecaki

266000 kr