Carport 5.7x7.8 M

90000 kr

Pris (med MVA): 90000 kr

Beskrivelse

caret-down
  • Skreddersydd og tilpasninger mulig.

Inkludert i pakken

caret-down
  • Carport i limtre konstruksjon (70 % sterkere enn heltre):
  • Redskapsbod/bod medfølger
  • Stolper 135x135mm;
  • Bjelker 135x135mm;
  • Taksperrer 58x220mm;
  • Takbord 19x100 mm;
  • Kantbord 19x100 mm;
  • Monteringsanvisning;
  • Takpapp/takshingel og metall stolpesko medfølger ikke.

 

Tekniske opplysninger

caret-down
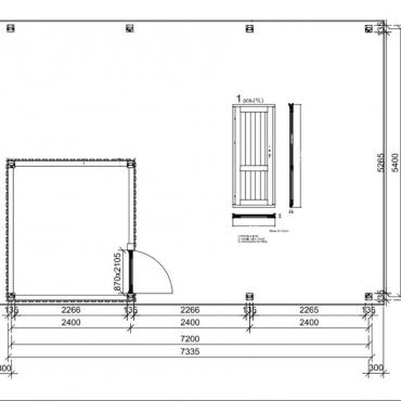
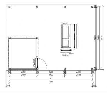
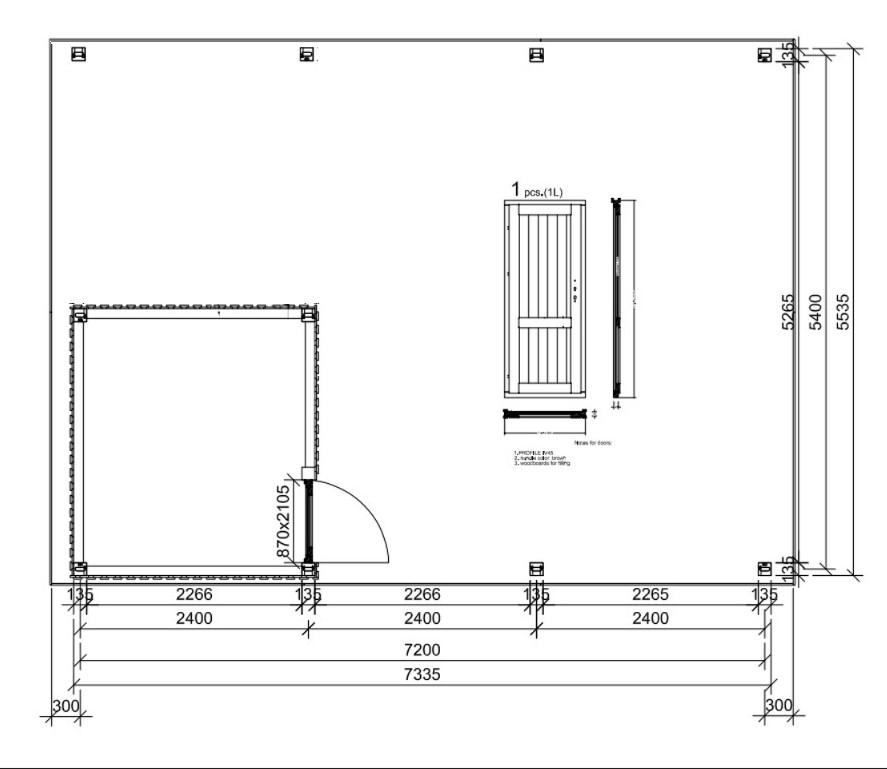
Veggtykkelse (mm):
135mm limtre ramme
Bygningsarea(m²)l:
40.6
Takformen:
Pulttak
Innvendige mål (m):
2.266 x 2.63
Utvendige mål (m):
7.335 x 5.535
Bygningsareal(m²):
40.60
Takareal (m²):
44.46
Laveste vegghøyde (m):
2.20
Ytterdør størrelse (m):
0.87 x 2.105
Innkjørsel bredde (m):
5.27
Innkjørsel høyde (m):
2.20
Få flere opplysninger
Ved å sende denne meldingen vil du motta et tilbud på produktet: Carport 5.7x7.8 M

Carport 5.7x7.8 M

90000 kr