Ambra

488888 kr

Pris (med MVA): 488888 kr

Beskrivelse

caret-down
  • Høyde på bjelkene 260 mm (laminert i tykkelse og høyde), noe som gir en mer solid struktur.
  • Skreddersydd og tilpasninger mulig.
  • Tykkere vegg 135mm, 180mm, 220mm mulig.

Inkludert i pakken

caret-down
  • Gulv - høytrikk impregnerte grunnbjelker. Gulvbord 28 mm,gulvlister. Klargjørt for isolasjon;
  • Bjelker til andre etasje,himlingspanel for første etasje,lekter(hvis andre etasje er planlagt)
  • Trapp til andre etasje eller hems(hvis planlagt i prosjekt)
  • Vegg og mellommvegg i limtre med laftehjørnet eller city hjørnet.Treramme mellomveg også mulig.
  • Tak - bjelker, takstoler, taksperrer, lekter, kantbord, not og fjær takbord,himlingspanel. Tak klartgjørt for isolasjon og takbelegg;
  • Limtre vinduer og dører med isolerglass. Dekorativ treramme innvendig og utvendig;
  • Innvendige dører i limt treverk med eller uten glass. Dekorativ treramme innvendig og utvendig;
  • Vertikale støtter og støttemekanismer hvis beskrevet av prosjektspesifikasjonene;
  • Dekorativ fresing av sperreender, kolonner, rekkverk og andre synlige detaljer (design etter avtale);
  • Industriell klargjøring av ledningskanaler, plasseringer til stikkontakter og brytere.
  • Monteringsinstruks, teknisk dokumentasjon, detaljerte tegninger og planer.

Tekniske opplysninger

caret-down
Veggtykkelse (mm):
90mm
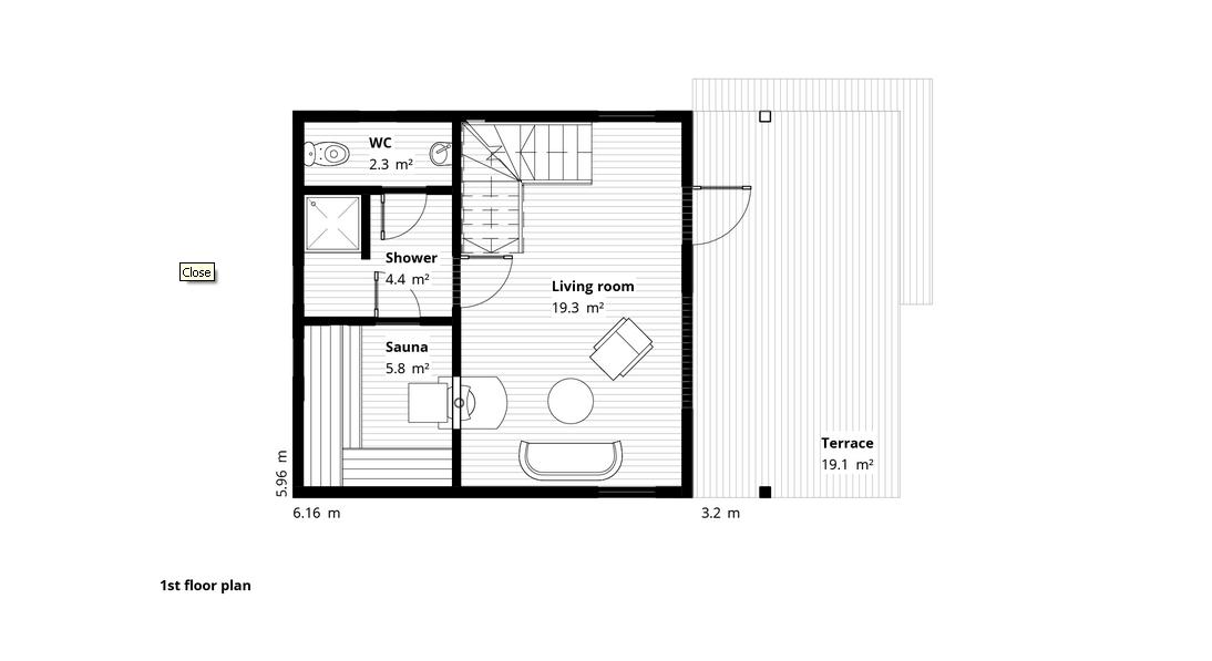
Bruksareal (m²):
59
Antall etasjer:
2
Takformen:
Valmtak
Antall rom:
Mer enn tre
Utvendige mål (m):
9.36 x 5.96
Bygningsareal(m²):
37.90
Terrasse (m²):
19.10
Tilleggssett
caret-down
  • Fabrikkmaling og lakkering av vinduer og dører mot tillegg.
  • Det kan også bestilles  fundament, montering, isolering, takbelegg og maling.
  • Isolering mulig, på utsiden eller innsiden (treramme fylt med steinull  eller ecowool, kledning med planker som imiterer tømmerstokker eller med andre typer materialer).
Få flere opplysninger
Ved å sende denne meldingen vil du motta et tilbud på produktet: Ambra

Ambra

488888 kr