Milano 40

55900 kr

Pris (med MVA): 55900 kr

Tekniske opplysninger

caret-down
Veggtykkelse (mm):
40mm
Bruksareal (m²):
11.53
Takformen:
Valmtak
Husets form:
Femkantet
Antall rom:
To
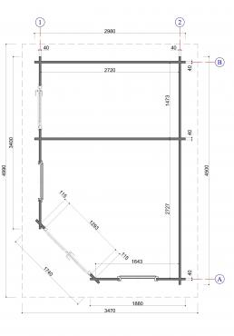
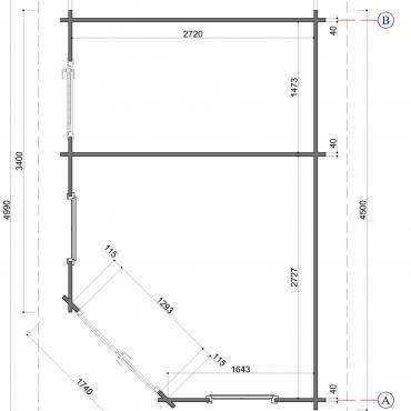
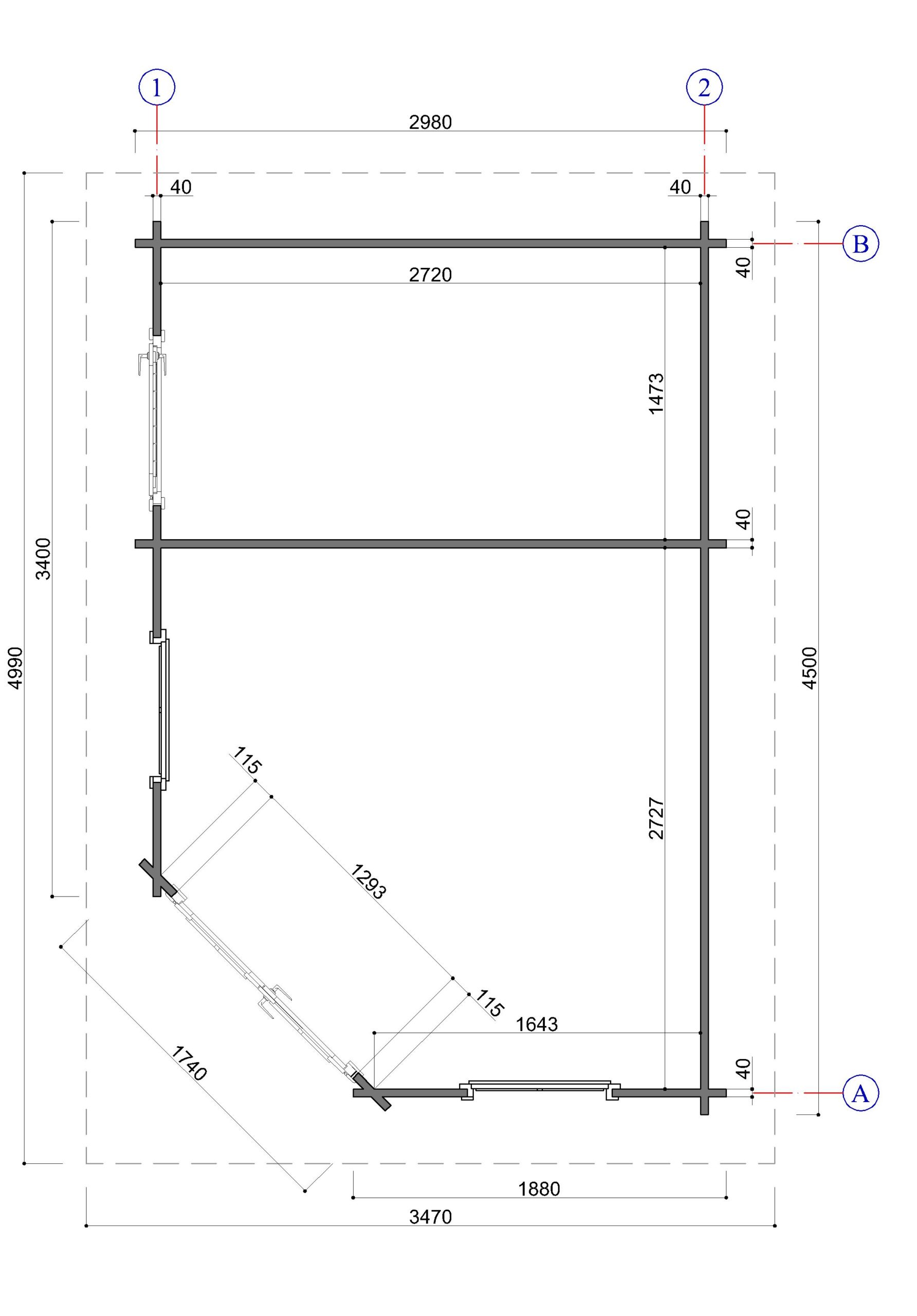
Innvendige mål (m):
4.24 x 2.72
Utvendige mål (m):
4.32 x 2.80
Bygningsareal(m²):
12.10
Takareal (m²):
17.50
Tak overheng foran (m):
0.25
Laveste vegghøyde (m):
2.05
Mønehøyde (m):
2.70
Antall vinduer (stk.):
2
Vindusstørrelsen (m):
0.73 x 1.43
Ytterdør størrelse (m):
1.22 x 1.87
Innerdør størrelse (m):
0.81 x 1.87

Inkludert i pakken

caret-down
  • 19 mm tak,kantbord;
  • 19 mm gulvbord,gulvlister;
  • Glassdør i limtre;
  • Vippe-sving vindu i treramme;
  • Impregnerte grunnbjelker;
  • Lav metallterskel;
  • Dør med sylinderlås og håndtak;
  • Monteringsanvisning.
Tilleggssett
caret-down
  • Tykkere gulv 28mm not og fjær gulvbord 2500kr med moms
  • Isolerglass vinduer,dører 3000kr med moms
Få flere opplysninger
Ved å sende denne meldingen vil du motta et tilbud på produktet: Milano 40

Milano 40

55900 kr